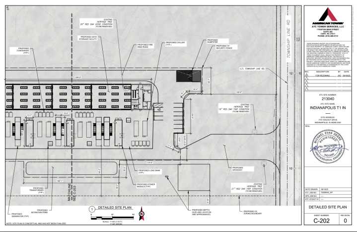
INDIANAPOLIS A group of residents is asking for answers about a proposed data center they say would destroy several acres of an urban forest in Pike Township.
The proposal calls for a 20,000-square-foot data center on property that now features a lush landscape of trees and forest, residents say. Long-time neighbors said a significant portion of the forest has already been removed.
"It's kind of scary, the deer are gone, the birds are gone, all manner of wildlife. We don't really miss the raccoons, though, Richard Vonder Meulen, who lives across the street from the proposed data center, said.
Vonder Meulen, who has lived in his home since 2001, said he misses the protection the tree canopy used to provide before more homes were built.
"When they took the woods down just three years ago

WRTV Indianapolis

America News
People Home
Gizmodo
The Babylon Bee
People Top Story
CBS News
Entertainment Tonight TV
AmoMama
The Fashion Spot